Sale
3

Spacious apartment in a new building between the city and the mountain, Boyana quarter

Price:
276 900 €
Sale
Ref. ID: 20381
Location: Boyana
Furnishing : Unfurnished
Living area: 99.88 м 2
Спални: 2
Бани: 1
Floor: 1 From 4
Parking: Outdoor Parking
Heating: Gas
Exposure: Изток, Юг

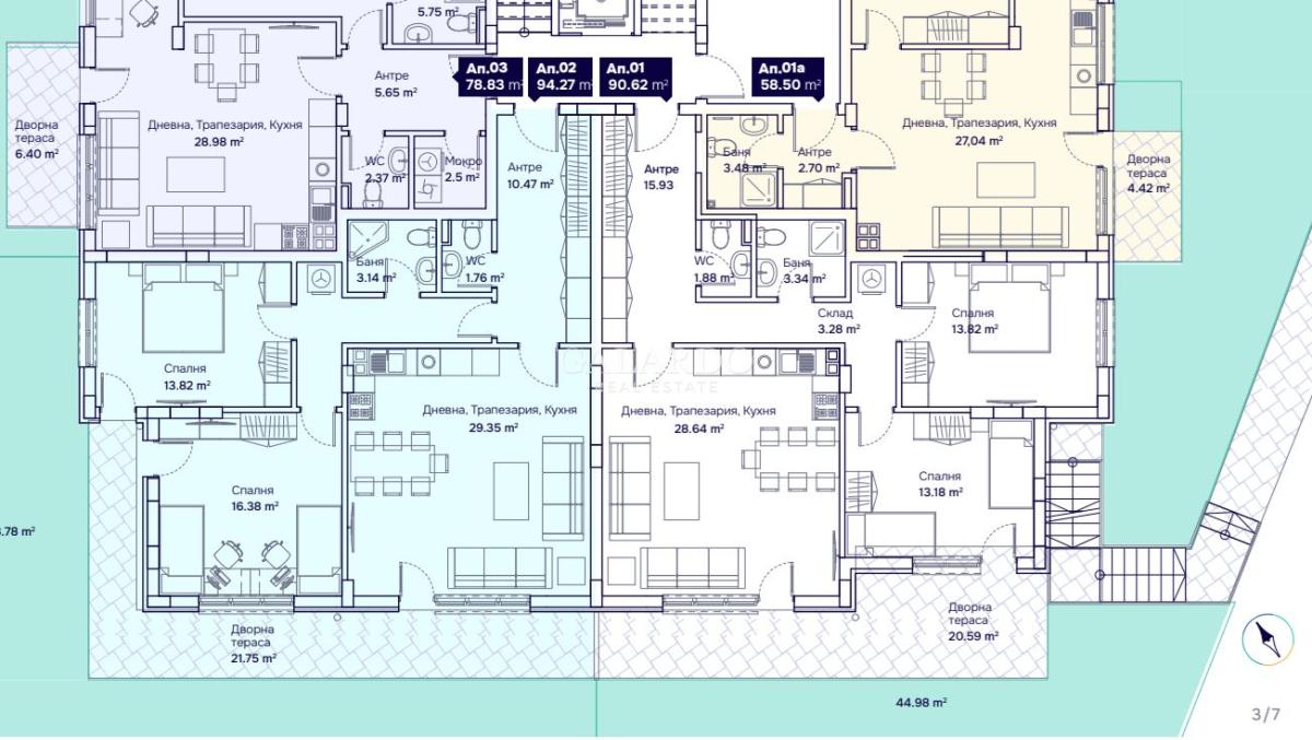
Galardo Real Estate is pleased to present a compact three-bedroom apartment in a newly constructed building, Boyana district.

The apartment has a built-up area of ​​146.76m2, the exposure is south/east/north.

The apartment is located on the ground floor and due to the height of the terrain, there are views of the city and Vitosha. It has two gardens - to the living room and one bedroom 45m2 and to the other bedrooms - 61.20m2.

The heating will be solved with an individual gas boiler - included in the price, additionally there are connections for air conditioners. The joinery is PVA, 6-chamber, with triple glazing, there is wiring for SOT and the Internet. Aluminum radiators, armored entrance door with Macter Kay locking system will be installed.

The building is small, a unique combination of modern architecture, high quality and nature, it has only 11 apartments and its own yard. It is located near a bus stop, kindergartens, not far from the Boyan church.

There is a vacant 2-bedroom apartment in the building.

Possibility of choosing a parking space a garage - EUR 35,000.

Distribution

  • Entrance hall
  • Living room with kitchen and dining room, with access to a 20m2 terrace and a 45m2 garden
  • Two bedrooms of 16m2 and 17m2, one with a bathroom
  • Third bedroom 22m2, connected to a cabinet/closet
  • Bathroom with toilet and separate toilet
  • Storage and utility room
  • Terrace 6m2 and garden 61m2

Advantages

  • High class construction
  • Great views
  • Easy access to Bulgaria Blvd
Call now

You may also like

Sale
4
369 600 360 480 €
Spacious apartment with two bedrooms in a new building next to Boyana Residence
ID: 20380
Boyana
2 bedrooms
120.16 m 2
590 000 €
Wonderful flat with excellent location in Boyana
ID: 20826
Boyana
2 bedrooms
180.00 m 2
890 000 850 000 €
Luxury three story penthouse with amazing views
ID: 18291
Boyana
4 bedrooms
745.00 m 2
935 000 €
Exceptional spacious 3 bedroom property in a prestigious complex
ID: 21421
Boyana
3 bedrooms
257.32 m 2
Sale
180 918 €
Sunny apartment with one bedroom and its own yard in a gated complex in the district Boyana
ID: 20601
Boyana
1 bedroom
95.22 m 2
693 320 €
Spacious and panoramic four-bedroom penthouse in a new gated complex in Boyana quarter
ID: 17281
Boyana
4 bedrooms
243.27 m 2