Продава
3

Просторен апартамент в нова сграда между града и планината, кв. Бояна

Цена:
539 451 €
Продава
Реф. №: 20381
Локация: Бояна
Обзавеждане : Необзаведен
Жилищна площ: 163.47 м 2
Спални: 3
Бани: 2
Етаж: 1 От 4
Паркинг: Открито паркомясто
Отопление: Газ
Изложение: Изток, Север, Юг

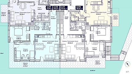
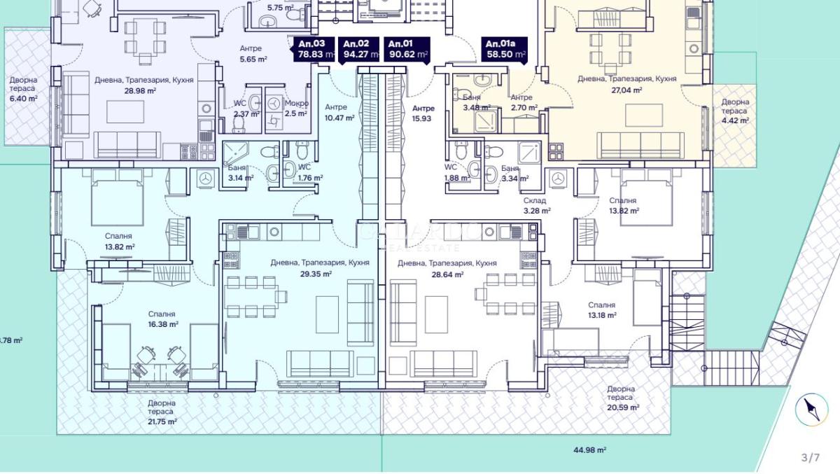
Galardo Real Estate с удоволствие представя компактен апартамент с три спални в новострояща се сграда, кв. Бояна.

Апартаментът е със застроена площ 146.76м2, изложението е юг/ изток/ север.

Апартаментът се намира на партерен етаж и поради височината на терена, има гледки към града и Витоша. Разполага с две градини - към хола и едната спалня 45м2 и към другите спални - 61.20м2. Сградата е с Акт 14, планирано завършване до средата на 2026г.

Отоплението ще е решено с индивидуално газово котле - включено в цената, допълнително има изводи за климатици. Дограмата е ПВС, 6-камерна, с троен стъклопакет, има окабеляване за СОТ и интернет. Ще бъдат монтирани алуминиеви радиатори, блиндирана входна врата със система за заключване Мактър Кей.

Сградата е малка, уникално съчетание на модерна архитектура, високо качество и природа, тя е само с 11 апартамента и собствен двор. Намира се в близост до автобусна спирка, детски градини, недалеч от Боянската църква.

В сградата има свободен апартамент на ет.4

Възможност за избор на паркомясто - от 20 000Евро, или гараж - 35 000Евро.

Разпределение

  • Антре
  • Всекидневна с кухня и трапезария, с излаз на тераса 20м2 и градина 45м2
  • Две спални по 16м2 и 17м2, едната с баня
  • Трета спалня 22м2, свързана  с кабинет/ дрешник
  • Баня с тоалетна и отделна тоалетна
  • Складово и мокро помещение
  • Тераса 6м2 и градина 61м2

Преимущества

  • Висок клас строителство
  • Чудесни гледки
  • Лесен достъп до бул. България
Обадете се
Поля Кирова
Старши агент недвижими имоти

Може да харесате още

590 000 €
Прекрасен апартамент с отлична локация в кв.Бояна
ID: 20826
Бояна
2 спални
180.00 m 2
890 000 850 000 €
Луксозен тризонет с умопомрачителни панорамни гледки
ID: 18291
Бояна
4 спални
745.00 m 2
Продава
9
180 918 €
Слънчев апартамент с една спалня и собствен двор в затворен комплекс в кв. Бояна
ID: 20601
Бояна
1 спалня
95.22 m 2
693 320 €
Просторен и панорамен пентхаус с четири спални в нов затворен комплекс в кв. Бояна
ID: 17281
Бояна
4 спални
243.27 m 2
Продава
495 000 €
Прекрасен мезонет със страхотни гледки в бутикова сграда
ID: 20258
Бояна
3 спални
325.00 m 2
267 000 €
Слънчев и светъл тристаен апартамент на две нива в кв. Бояна
ID: 18942
Бояна
2 спални
156.00 m 2