 
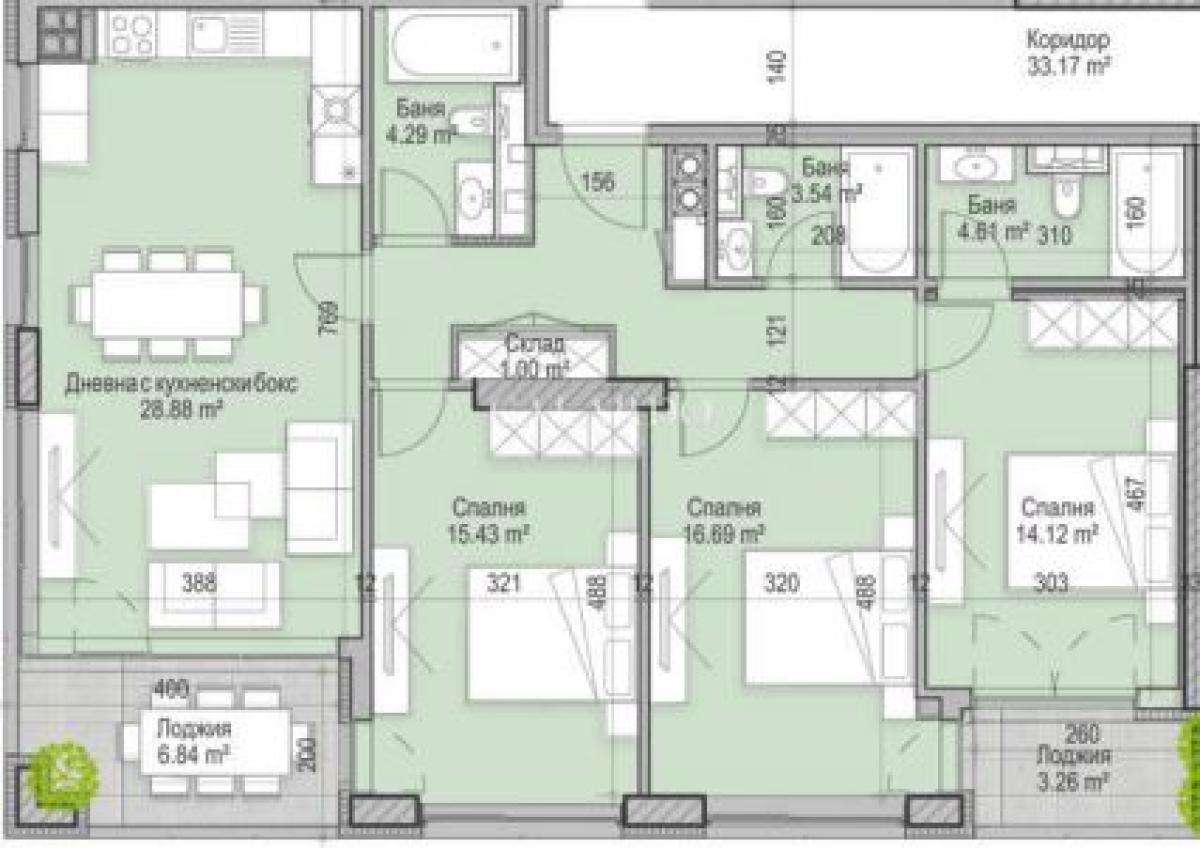
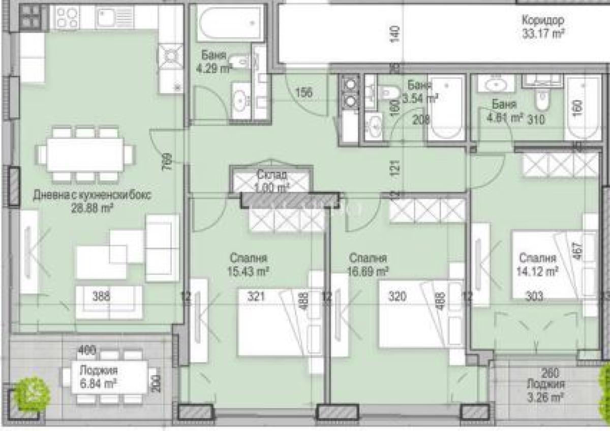
            Galardo Real Estate offers to your attention a four-room apartment in a newly built building in the Krastova Vada district of an investor with a rich portfolio.
Suspended facade with natural stone
Bricks Wienerberger porotherm 25N+F
Thermal insulation system Baumit-10 cm
Waterproofing membrane from Sika
Aluminum profiles
Reynaers MasterLine10 with triple glazing and external energy-efficient glass
Dual-circuit gas boiler Viessmann
Built-in underfloor heating system
Luxurious common areas with natural stone flooring
Elevator Kone
Apartments-Gypsum plaster and screed
Sound insulation between the slabs - 5mm membrane DRACT
Terraces-double floor with granite tiles
Entrance armored doors Solid55
Access control with facial recognition
Video intercoms
High-quality construction, comfortable and modern living environment in a rapidly developing area.
We have available four-room apartments in the building, as well as parking spaces.
VAT is charged additionally to the announced price.