Продава
10

Самостоятелна къща в комплекс от къщи в местност "Детски град", Панчарево

Цена:
528 000 €
Продава
Реф. №: 21863
Локация: Панчарево
Тип: Къща
Обзавеждане : Необзаведен
Жилищна площ: 197.78 м 2
Спални: 4
Паркинг: Открито паркомясто
Отопление: Електричество
Изложение: Запад, Юг

Galardo Real Еstate има удоволствието да ви представи самостоятелна къща с квадратура от 197.68 кв.м. и двор 363 кв.м. част от нов жилищен комплекс в местността "Детски град" в Панчарево. Комплексът заема терен от приблизително 4 700 кв.м. и предлага 13 модерни еднофамилни къщи - 6 свободностоящи и 7 редови къщи, обединени в хармонично и подредено пространство.

Всяка сграда е проектирана с ясна архитектурна визия- изчистени линии, плоски покриви и функционално разпределение, което отговаря на нуждите на съвременното семейство.

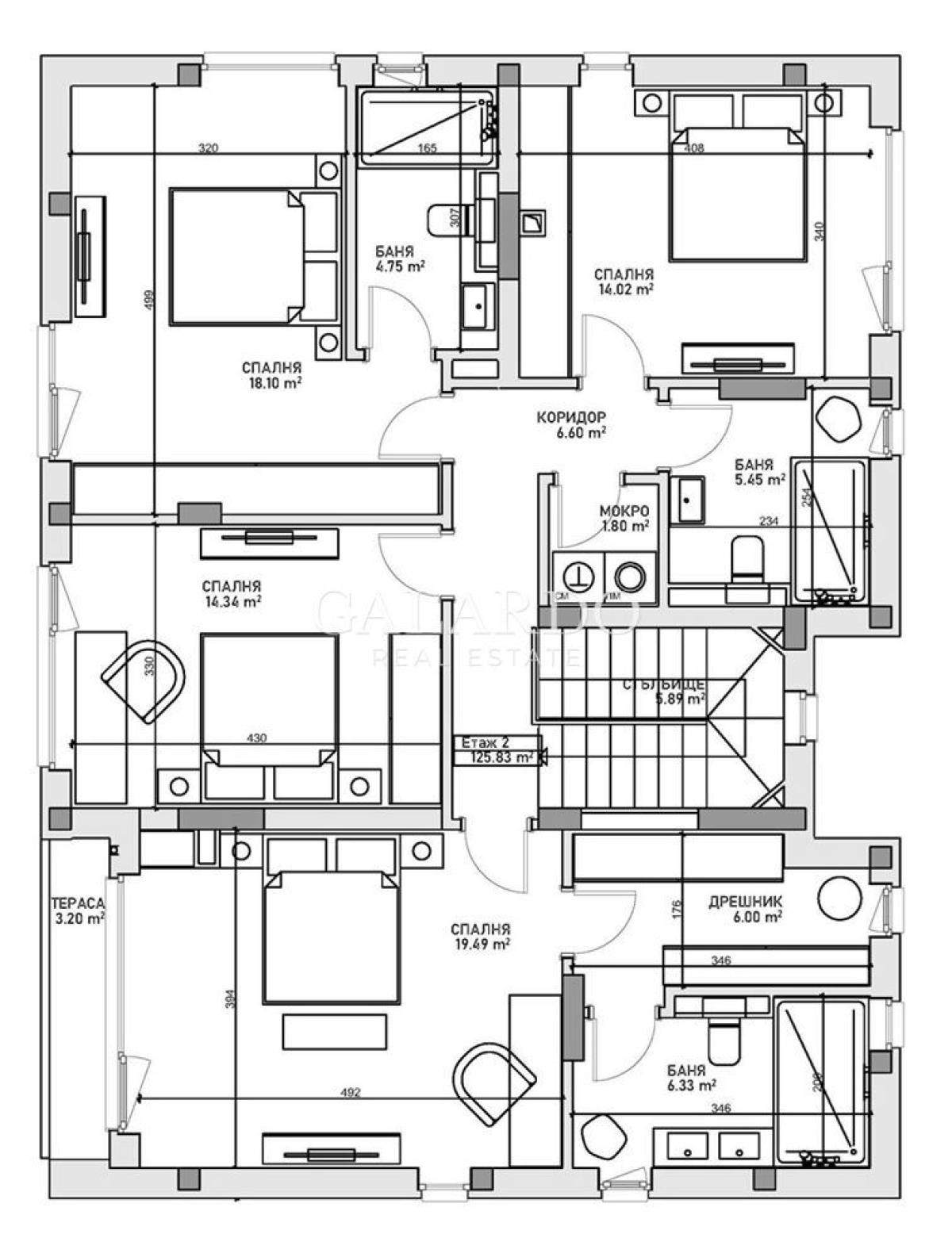
Къщата разполага с обширна дневна с трапезария и кухня, 4 спални и работен кабинет и/или гардеробно помещение, с по 3 бани с WC и отделна WC за гости до дневната, мокро помещение за пералня, сушилня и гладачна маса, тераса, самостоятелен двор 363 кв.м., както и обособени две надземни места за паркиране на два автомобила.

Светла височина на приземен етаж е 2,94 м. от готов под до окачен таван и 2,70 м. на втори етаж, с прозоречни системи тип "френски прозорци", които обхващат пространството от пода до тавана.

Комплексът е разположен в живописна местност, в близост до Англо-американско училище, недалеч от Бизнес Парк София и метростанция.

Срок за Акт 16 - в края на 2027 г.

Цената е без ДДС

Разпределение

Партер:

  • Просторна дневна с кухня и трапезария 
  • Тоалетна
  • Складово помещение

Етаж 1:

  • Четири спални
  • Три бани с тоалетни
  • Дрешник
  • Мокро помещение
  • Тераса

Преимущества

  • Красиви панорамни гледки към Витоша и града
  • Чист въздух и спокоен живот на тиха улица
  • Бутиков комплекс с контролиран достъп
  • Бърз достъп до Околовръстен път и София
Обадете се

Може да харесате още

509 900 €
Прекрасна редова къща в полите на Витоша
ID: 18422
Панчарево
4 спални
252.85 m 2
Продава
6
415 000 €
Редова къща в комплекс от къщи в местност "Детски град", Панчарево
ID: 21872
Панчарево
3 спални
189.20 m 2
2 200 000 €
Еднофамилна къща с басейн в райски комплекс от къщи в местност Камбаните
ID: 16480
Панчарево
5 спални
633.56 m 2