Продаден
12

Самостоятелна къща с басейн в райски комплекс от къщи в местност Детски град

Цена:
1 480 000 €
Продаден
Реф. №: 18663
Локация: Панчарево
Тип: Къща
Обзавеждане : Необзаведен
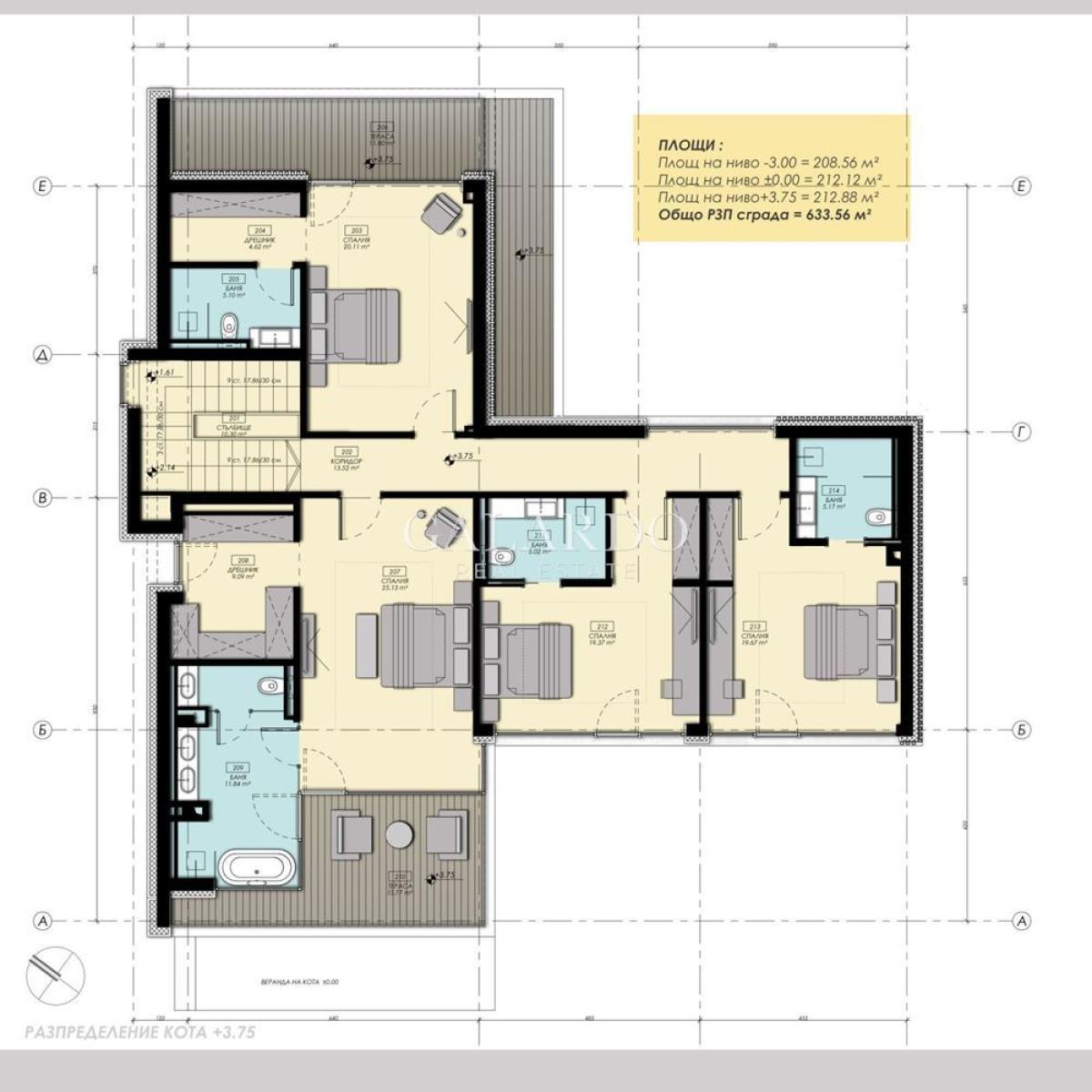
Жилищна площ: 633.56 м 2
Двор: 1240.00 м 2
Паркинг: Гараж
Изложение: Изток, Запад, Север, Юг

Galardo Real Estate с голямо удоволствие представя самостоятелна, ултра модерна къща с басейн за продажба в затворен комплекс.

Имотът разполага с прекрасен озеленен двор - 1 240кв.м., автоматична поливна система, предвидено място за барбекю с комин. Използвани са най-висок клас материали при строителството на къщата - фасадна топлоизолация с покритие от иновативно синтетично дърво WPС, алуминиева дограма Schueco, гаражни врати "HOERMANN" и др.

Отопението е посредством въздушна термопомпа MITSUBISHI. Към термопомпата има буферен съд, който е с отделна серпентина за включване към соларни отоплителни панели.

Планиран срок за завършване - 31.03.2025г.

Комплексът е разположен в живописна местност, в близост до Англо-американско училище, недалеч он Бизнес Парк София и метростанция, асфалтиран път.

Цената е без включено ДДС.

Разпределение

  • Първо ниво: спалня/стая за почивка, фитнес зала, дрешник, стая за обувки, баня с тоалетна, гараж за 2 коли с техническо помещение
  • Второ ниво: емпоре, просторна дневна с трапезария и кухня, свързани с покрита веранда и излаз към басейна, кабинет с тераса, тоалетна
  • Трето ниво: две спални с дрешници и баня с тоалетна, две спални с баня с тоалетна, две тераси

Преимущества

  • Затворен комплекс с охрана
  • Прецизен архитектурен дизайн и функционалност
  • В близост до Англо-американско училище
  • Прекрасни гледки към планината
Обадете се
Поля Кирова
Старши агент недвижими имоти

Може да харесате още

509 900 €
Прекрасна редова къща в полите на Витоша
ID: 18422
Панчарево
4 спални
252.85 m 2
Продава
6
415 000 €
Редова къща в комплекс от къщи в местност "Детски град", Панчарево
ID: 21872
Панчарево
3 спални
189.20 m 2
Продава
10
495 000 €
Самостоятелна къща в комплекс от къщи в местност "Детски град", Панчарево
ID: 21863
Панчарево
4 спални
197.78 m 2
2 200 000 €
Еднофамилна къща с басейн в райски комплекс от къщи в местност Камбаните
ID: 16480
Панчарево
5 спални
633.56 m 2