Самостоятелна нова къща със съвременен дизайн в Драгалевци

Цена:
1 099 000 €
Продава
Реф. №: 21439
Локация: Драгалевци
Тип: Къща
Обзавеждане : Необзаведен
Жилищна площ: 318.00 м 2
Двор: 520.00 м 2
Спални: 4
Паркинг: Гараж
Отопление: Газ
Изложение: Изток, Юг

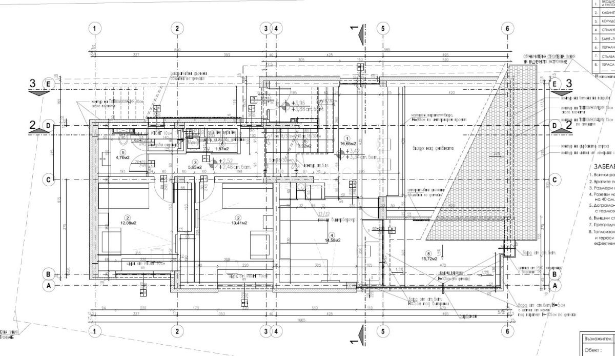
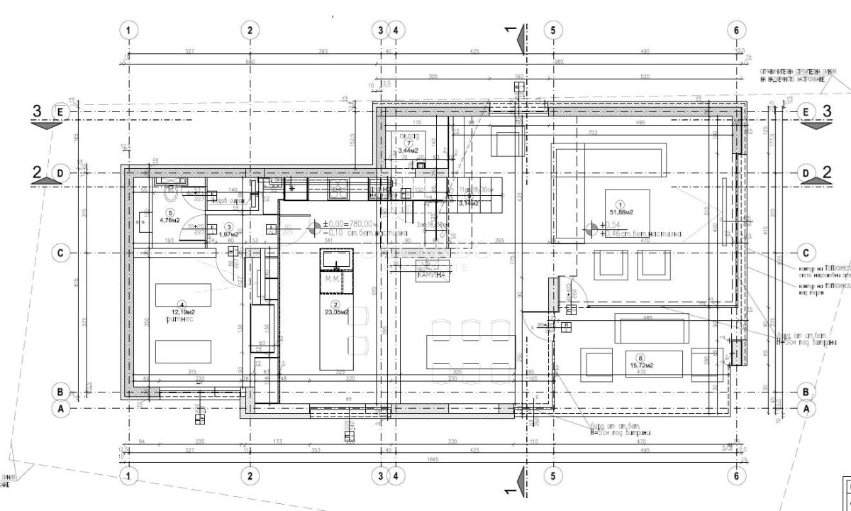
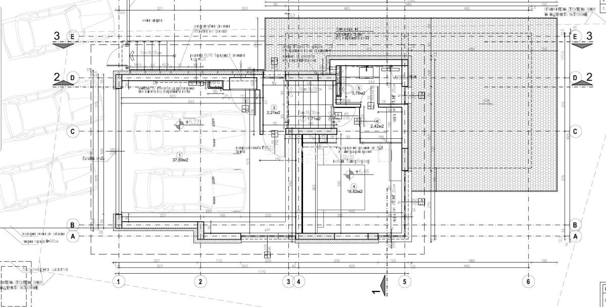
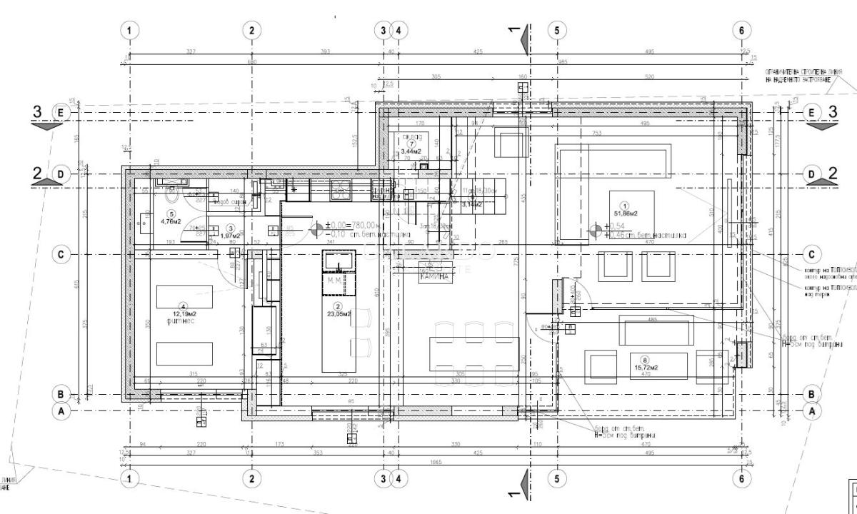
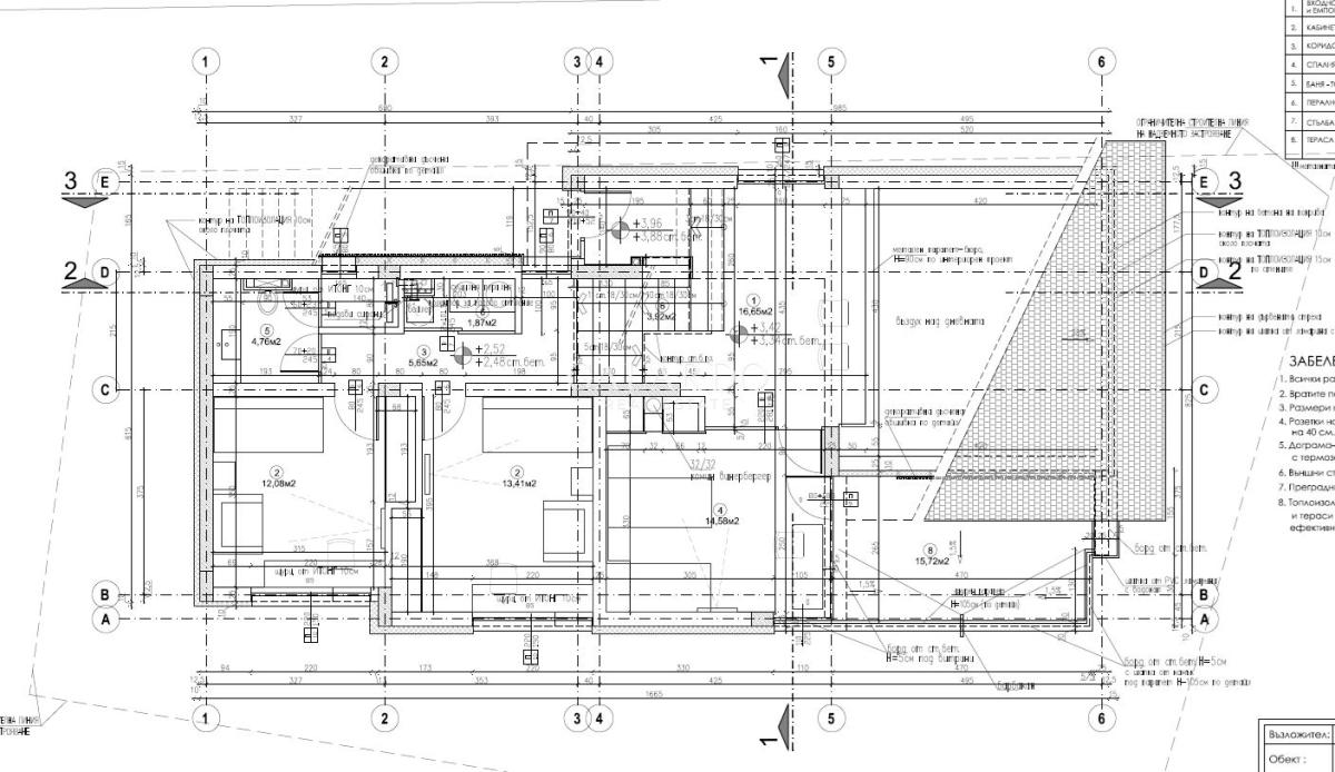
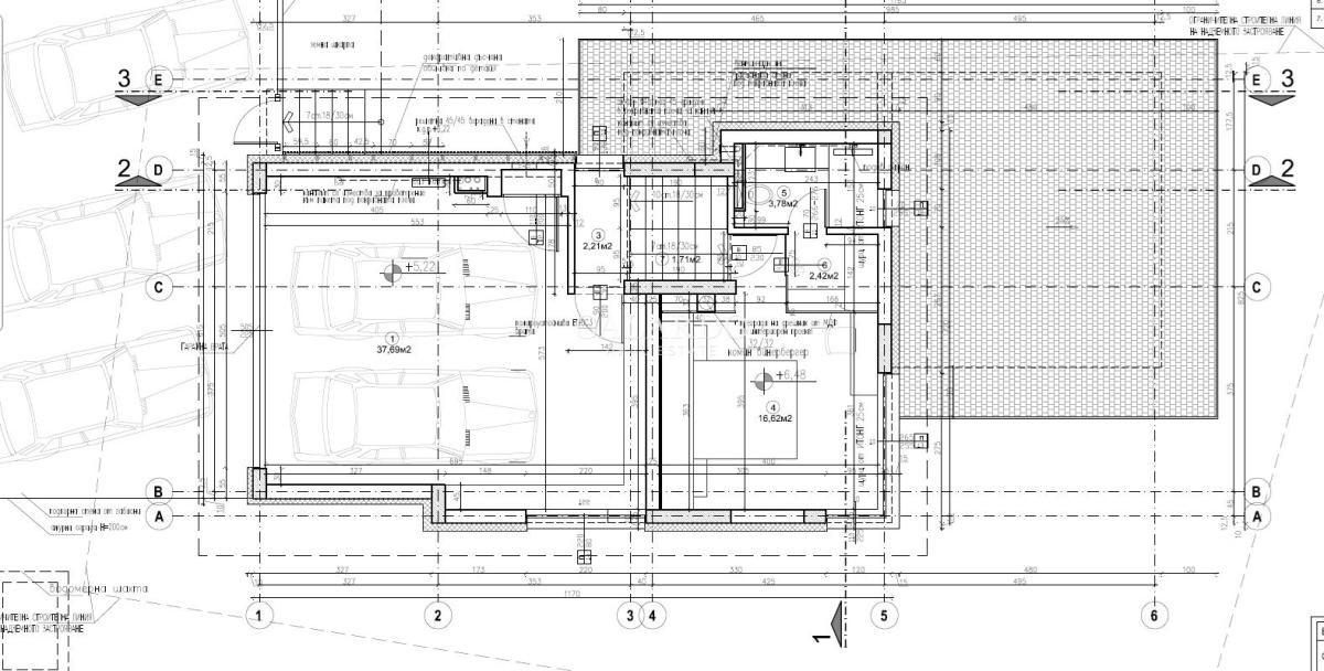
Galardo Real Estate има удоволствието да Ви представи самостоятелна нова къща, разположена в подножието на Витоша, с престижна локация в кв.Драгалевци. Къщата съчетава в себе си съвременен дизайн, прецизно разпределение и удобства. Къщата е разпределена на три нива включващи: Хол с трапезария и отделно ниво кухня, Емпоре, 4 спални + 1 кабинет/фитнес, 3 бани, 2 тераси, гараж за 2 автомобила и възможност за паркиране на още 3 автомобила отпред. От двора и имота се откриват прекрасни гледки към Витоша и града.

Отоплението е предвидено на газ, с подово отопление на всички нива. Изградена е с висококачетвени мтариали - тухли Винербергер, материали Knauf, гаражна врата Hormann. Фасадата на къщата ще бъде завършена с висококачествена мазилка и HPL.

Предвидено е цялостно озеленяване.

Пред Акт 15. Очакван Акт 16 в началото на 2026г.

Разпределение

  • Първи етаж: Дневна с кухня с и трапезария, Склад, Фитнес/кабинет/спалня, Баня с тоалетна, тераса с излаз към градината.
    • Втори етаж: Емпоре, 3 спални, баня с тоалетна, мокро помещение, 2 тераси
    • Трети етаж : Родителска спалня с баня и тоалетна

Преимущества

  • Престижна локация
  • Чист въздух и прекрасни гледки
  • Модерен дизайн
  • Висок клас материали
Обадете се
Боряна Недева
Старши агент недвижими имоти

Може да харесате още

Продава
729 000 €
Невероятна къща "до ключ" в луксозен затворен комплекс
ID: 20721
Драгалевци
3 спални
240.20 m 2
Продава
7
833 000 €
Иновативна модерна къща в престижна локация в Драгалевци
ID: 18490
Драгалевци
4 спални
379.60 m 2
Продава
1 290 000 €
Просторна къща с четири спални и уникални гледки в кв.Драгалевци
ID: 18167
Драгалевци
4 спални
660.00 m 2
Продава
11
670 000 €
Просторна еднофамилна къща в нов затворен комплекс
ID: 21182
Драгалевци
4 спални
304.00 m 2
Продава
890 000 849 990 €
Функционална еднофамилна къща с двор в затворен комплекс в кв. Драгалевци
ID: 18891
Драгалевци
4 спални
390.00 m 2
760 000 €
Просторна еднофамилна къща в нов затворен комплекс
ID: 20227
Драгалевци
4 спални
345.00 m 2