Чудесна еднофамилна къща с равен двор до Фантастико, кв.Драгалевци

Цена:
620 000 €
Продаден
Реф. №: 16813
Локация: Драгалевци
Тип: Къща
Обзавеждане : Необзаведен
Жилищна площ: 300.00 м 2
Двор: 418.00 м 2
Спални: 4
Бани: 2
Паркинг: Гараж
Отопление: Локално парно
Изложение: Изток, Север, Юг

Galardo Real Estate с огромно удоволствие представя функционална къща, заършена с висококачествени материали, до Фантастико в кв.Драгалевци.

Къщата е на 3 етажа, всеки с площ 100кв.м.. в самостоятелен двор 418кв.м. Отоплението е подово в хола, коридорите и мокрото помещение. Допълнително има помещение за термопомпа въздух - вода, която е включена в цената. Дограмата е алуминиева, с троен стъклопакет и високоенергийно стъкло с различна дебелина отвътре, с топлоизолация на стените и покрива.

Има подземна топло- и хидроизолация, с дренаж, индивидуална пречиствателна станция и система против замръзане на улуци.

Всичко това прави сградата високоенергийно ефективна (клас А)..

Изградено е външно барбекю в двора. Имотът се намира на асфалтирана улица, само на минути от 2 супермаркета, атобусни спирки, спортна зала, ресторанти и Околовръстен път. Планирано е Разрешение за ползване - март 2022г.

Цената е без ДДС.

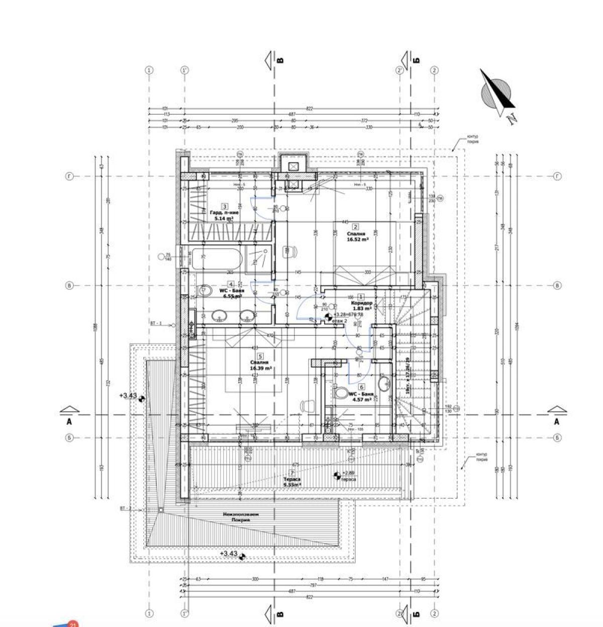
Разпределение

  • Първо ниво:
  • Всекидневна с кухня и трапезария и камина, килер, котелно, баня с тоалетна
  • Второ ниво:
  • Коридор, две спални, две бани с wc, тераса, гараж за две коли
  • Трето ниво:
  • Две спални, едната с дрешник и бана, баня с тоалетна

Преимущества

  • Отлична локация
  • Високи тавани
  • Възможност за завършване до ключ
  • Енерго- ефективна къща
Обадете се
Поля Кирова
Старши агент недвижими имоти

Може да харесате още

729 000 €
Невероятна къща "до ключ" в луксозен затворен комплекс
ID: 20721
Драгалевци
3 спални
240.20 m 2
Продава
7
833 000 €
Иновативна модерна къща в престижна локация в Драгалевци
ID: 18490
Драгалевци
4 спални
379.60 m 2
1 290 000 €
Просторна къща с четири спални и уникални гледки в кв.Драгалевци
ID: 18167
Драгалевци
4 спални
660.00 m 2
Продава
9
670 000 €
Просторна еднофамилна къща в нов затворен комплекс
ID: 21182
Драгалевци
4 спални
304.00 m 2
999 990 890 000 €
Функционална еднофамилна къща с двор в затворен комплекс в кв. Драгалевци
ID: 18891
Драгалевци
4 спални
390.00 m 2
760 000 €
Просторна еднофамилна къща в нов затворен комплекс
ID: 20227
Драгалевци
4 спални
345.00 m 2