Прекраснa еднофамилна къщa с басейн в кв. Драгалевци

Цена:
795 000 €
Продаден
Реф. №: 16711
Локация: Драгалевци
Тип: Къща
Обзавеждане : Необзаведен
Жилищна площ: 524.27 м 2
Двор: 221.00 м 2
Спални: 5
Бани: 4
Паркинг: Гараж
Отопление: Газ
Изложение: Изток, Запад, Север, Юг

Galardo Real Estate представя просторни еднофамилни къщи в комплекс в кв. Драгалевци разположен в полите на Витоша, в една от най-желаните части на столицата.

Позволява бърз и удобен достъп до Околовръстния път на София, както и връзка с автобусен транспорт.

Всяка от къщите е комфортна, с просторни и светли помещения, изпълнена с материали от най-висок клас. Вътрешните пространства са с изчистена планировка, даваща възможност за развитие на интериора и обзавеждането според конкретният вкус на всеки клиент.

Къщите разполагат със собствен двор от 221 кв.м, подземен гараж за две коли и басейн 9х3 м.

С Акт 16

Цената е без ДДС.

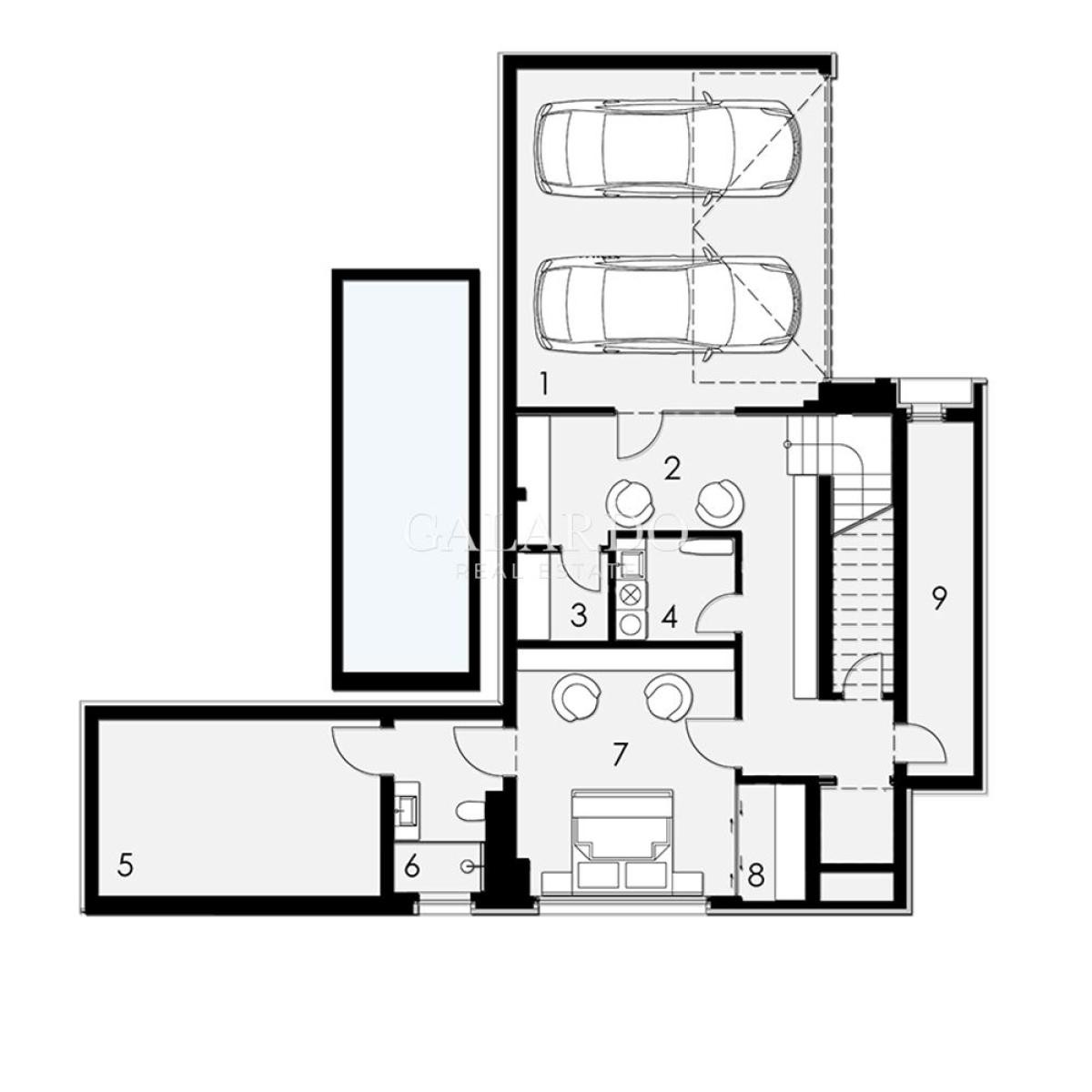
Разпределение

Полуподземното ниво:

  • гараж за две коли
  • стая за гости
  • сервизни и инсталационни помещения

Първи етаж:

  • дневна с кухнята и столовата
  • покрита тераса с възможност за остъкляване и изглед към басейна, градината и града

Втори етаж:

  • три спални
  • две бани с тоалетна

Трети терасовиден етаж:

  • родителска спалня с голям дрешник и просторна, богато остъклена и осветена баня
  • голяма покривна тераса с безупречна панорама във всички посоки от която се разкрива, спираща дъха гледка към дневна и нощна София

Преимущества

  • Затворен комплекс
  • Невероятни гледки към София и Витоша
  • Комуникативна локация
  • Самостоятелен прилежащ двор
  • Подземни гаражи
  • 4 спални във всяка къща
  • Покривна тераса
  • Самостоятелен басейн
Обадете се
Боряна Недева
Старши агент недвижими имоти

Може да харесате още

729 000 €
Невероятна къща "до ключ" в луксозен затворен комплекс
ID: 20721
Драгалевци
3 спални
240.20 m 2
Продава
7
833 000 €
Иновативна модерна къща в престижна локация в Драгалевци
ID: 18490
Драгалевци
4 спални
379.60 m 2
1 290 000 €
Просторна къща с четири спални и уникални гледки в кв.Драгалевци
ID: 18167
Драгалевци
4 спални
660.00 m 2
Продава
9
670 000 €
Просторна еднофамилна къща в нов затворен комплекс
ID: 21182
Драгалевци
4 спални
304.00 m 2
890 000 849 990 €
Функционална еднофамилна къща с двор в затворен комплекс в кв. Драгалевци
ID: 18891
Драгалевци
4 спални
390.00 m 2
760 000 €
Просторна еднофамилна къща в нов затворен комплекс
ID: 20227
Драгалевци
4 спални
345.00 m 2