Просторна къща с пет спални близо до Villa Spago с. Бистрица

Цена:
1 700 000 €
Продава
Реф. №: 21877
Локация: Бистрица
Тип: Къща
Обзавеждане : Необзаведен
Жилищна площ: 572.61 м 2
Двор: 985.00 м 2
Спални: 5
Бани: 4
Паркинг: Гараж
Изложение: Изток, Запад, Север, Юг

Galardo Real Estate с голямо удоволствие представя къща в модерен стил, с усещане за простор, свобода и впечатляващи гледки.

Къщата е практична, с функционално разпределение. Френските прозорци правят къщата много светла.

Коридорът е проектиран с покривен светлинен купол, които осигурява обилна естествена светлина и създава усещане за въздух, височена и елегатностт още при входа на дома. .

Дворът е равен,с площ от 985кв.м. Отоплението е на термопомпа, с подово в цялата къща.

Къщата разполага с Акт 14 и ще бъде завършена до края на 2026г..Намира се на асфалтирана улица, в близост до Вила Спаго.

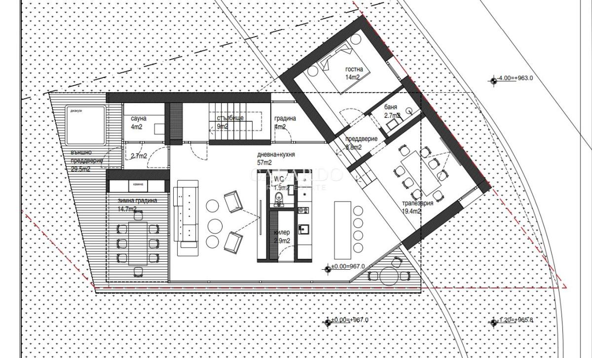
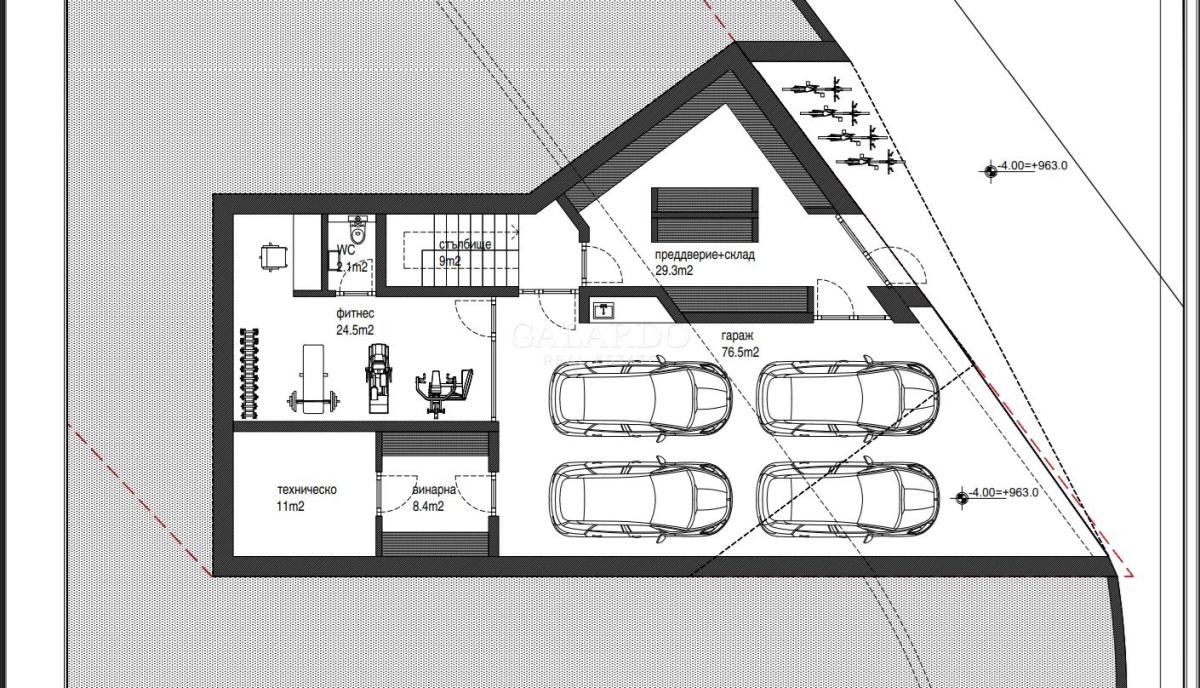
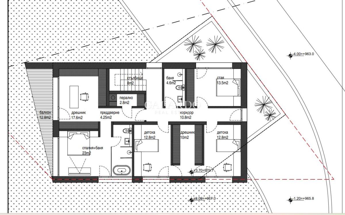
Разпределение

  • Сутерен:
  •   Гараж за 4 коли, фитнес, винарна, техническо помещение, склад, баня
  • Първи етаж:
  •   Дневна с кухня 62м2, трапезария, спалня с баня и тоалетна, килер, сауна, западна тераса (22кв.м) с вградено джакузи  и южна тераса (33кв.м)
  • Втори етаж:
  •   Родителска спалня с баня и дрешник, две детски спални с дрешник между тях, спалня, баня с тоалетна, перално помещение, тераса

Преимущества

  • Невероянти гледки и простор
  • Модерна архитектура
  • Висок клас материали
  • Бърз и лесен достъп
  • Подово отопление 
  • Фиитнес, винарна, сауна
Обадете се
Поля Кирова
Старши агент недвижими имоти

Може да харесате още

Продава
1 350 000 €
Просторна къща и още една по-малка в огромен парцел на чудесно място в Бистрица
ID: 21799
Бистрица
3 спални
587.00 m 2
898 400 €
Обзаведена самостоятелна къща с 5 спални в затворен комплекс в Бистрица
ID: 18025
Бистрица
5 спални
535.00 m 2
750 000 €
Луксозна еднофамилна къща със собствен двор
ID: 19701
Бистрица
4 спални
330.00 m 2
Продава
8
690 000 €
Прекрасна къща със самостоятелен двор в Бистрица
ID: 20874
Бистрица
4 спални
328.00 m 2