Апартамент на две нива в нова бутикова сграда до Южен парк, кв. Лозенец

Цена:
820 000 €
Продава
Реф. №: 18711
Обзавеждане : Необзаведен
Жилищна площ: 183.17 м 2
Спални: 4
Етаж: 4 От 5
Паркинг: Закрито паркомясто
Изложение: Изток, Юг

Galardo real Estate с голямо удоволствие предстаня апартамент на две нива и с четири спални в близост до басейна Спартак, кв.Лозенец.

Имотът се намира в нова сграда с Акт 16 от 2026 г., и впечатлява с модерна архитектура, функционално разпределение и висок клас материали.

Жилището е със застроена площ от 158.41 кв.м, като предлага простор, светлина и комфорт за цялото семейство.

Изложението е преобладаващо юг, има и спални на изток.

Апартаментът е проектиран с внимание към детайла и съвременния начин на живот. Отопление на термопомпа и подово отопление, алуминиева дограма Reynaers Aluminium, асансьор ORONA, общи части, покрити с ирански мрамор.

Има възможност за закупуване на *двойно подземно паркомясто -130 000 €

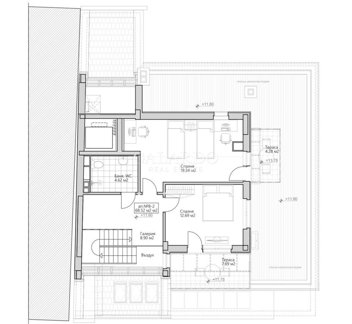
Разпределение

Първо ниво:

  •    Всекидневна с трапезария и кухненски бокс, тераса
  •    Спалня/кабинет
  •    Баня с тоалетна, мокро помещение и отделна тоалетна

Второ ниво:

  •    Три спални, едната с гардеробна
  •    Баня с тоалетна
  •    Тераса с площ 50м2

Преимущества

  • Престижна и търсена локация  
  • Нова сграда от 2026 г.  
  • Много светлина и усещане за простор  
  • Висок клас строителство и модерни технологии  
  • Подходящ както за живеене, така и за инвестиция  

Обадете се
Поля Кирова
Старши агент недвижими имоти

Може да харесате още

Продава
9
499 990 €
Четиристаен мезонет до Paradise Center и Южен парк
ID: 19953
Лозенец- Южен парк
3 спални
224.13 m 2