Просторен апартамент с 3 спални в кв. Витоша

Цена:
185 000 159 900 €
Продаден
Реф. №: 17557
Локация: Витоша
Обзавеждане : Обзаведен
Жилищна площ: 138.00 м 2
Спални: 3
Бани: 2
Етаж: 4 От 5
Паркинг: Гараж
Отопление: Електричество

Galardo Real Estate предлага просторен светъл апартамент с 3 спални, находящ се в близост до бул. "Симеоновско шосе" и бул. "Г.М.Димитров" на тихо и спокойно място. Апартаментът се състои от просторно антре, дневна, кухня с трапезария с балкон, тоалетна за гости, две спални всяка с балкон, кабинет, баня с тоалетна, мокро помещение. Отоплението е на ток. Изложението на апартамента е югоизток. С мазе - 10кв.м. Сградата е без асансьор.

Към апартамента има надземен гараж, който се продава за 20 000 евро.

Разпределение

  • Просторно антре
  • Дневна с кухня с трапезария
  • Балкон към трапезарията
  • Тоалетна за гости
  • Две спални всяка с балкон
  • Кабинет
  • Баня с тоалетна
  • Мокро помещение.
Обадете се
Боряна Недева
Старши агент недвижими имоти

Може да харесате още

Продава
5
411 000 €
Инвестиционен четиристаен апартамент в кв. Витоша
ID: 21515
Витоша
3 спални
146.50 m 2
Продава
5
266 000 €
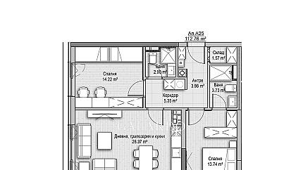
Инвестиционен тристаен апартамент в кв. Витоша
ID: 21514
Витоша
2 спални
112.76 m 2
Продава
5
178 000 €
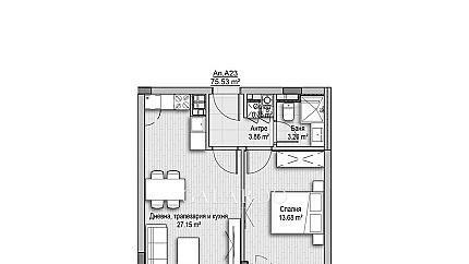
Инвестиционен двустаен апартамент в кв. Витоша
ID: 21510
Витоша
1 спалня
75.53 m 2