Самостоятелна модерна къща в близост до парк "Камбаните"

Цена:
640 000 €
Продава
Реф. №: 20683
Локация: София
Тип: Къща
Обзавеждане : Необзаведен
Жилищна площ: 186.00 м 2
Двор: 263.00 м 2
Спални: 3
Паркинг: Открито паркомясто
Отопление: Газ

Galardo Real Estate представя еднофамилна къща с двор в близост до парк 'Камбаните' и комплекс Gravity.

Имотът е разположен в мини комплекс от 4 къщи със собствени дворове.

Отоплението е предвидено на газ или с термопомпа на електричество.

Парцелът е разположен на тихо място с бърз излаз на Бистришко шосе и Околовръстен път. Изключително слънчево място с чист въздух , панорамни гледки и хубави къщи в съседство.

Къщите са с Акт 15, планиран срок за завършване - май 2026 година.

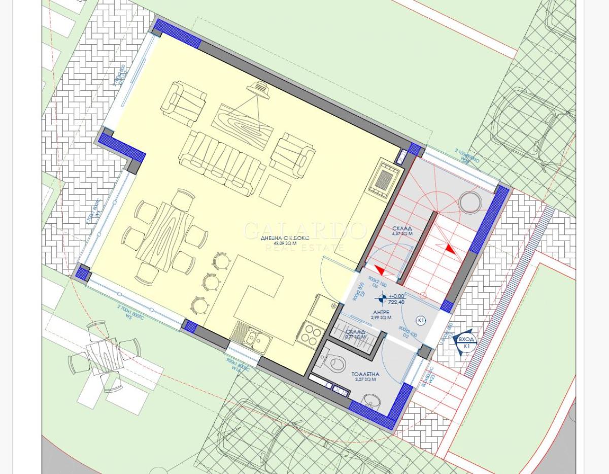
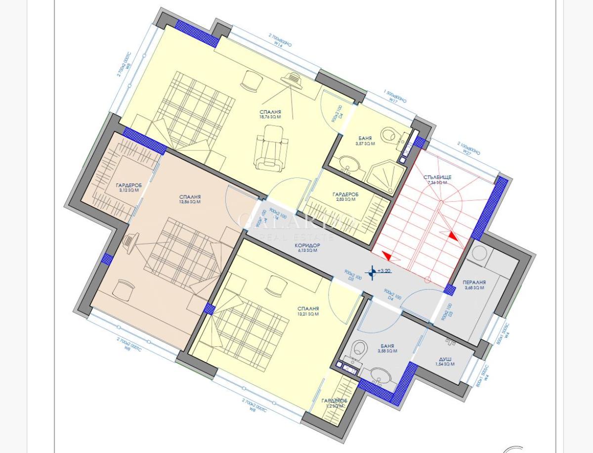
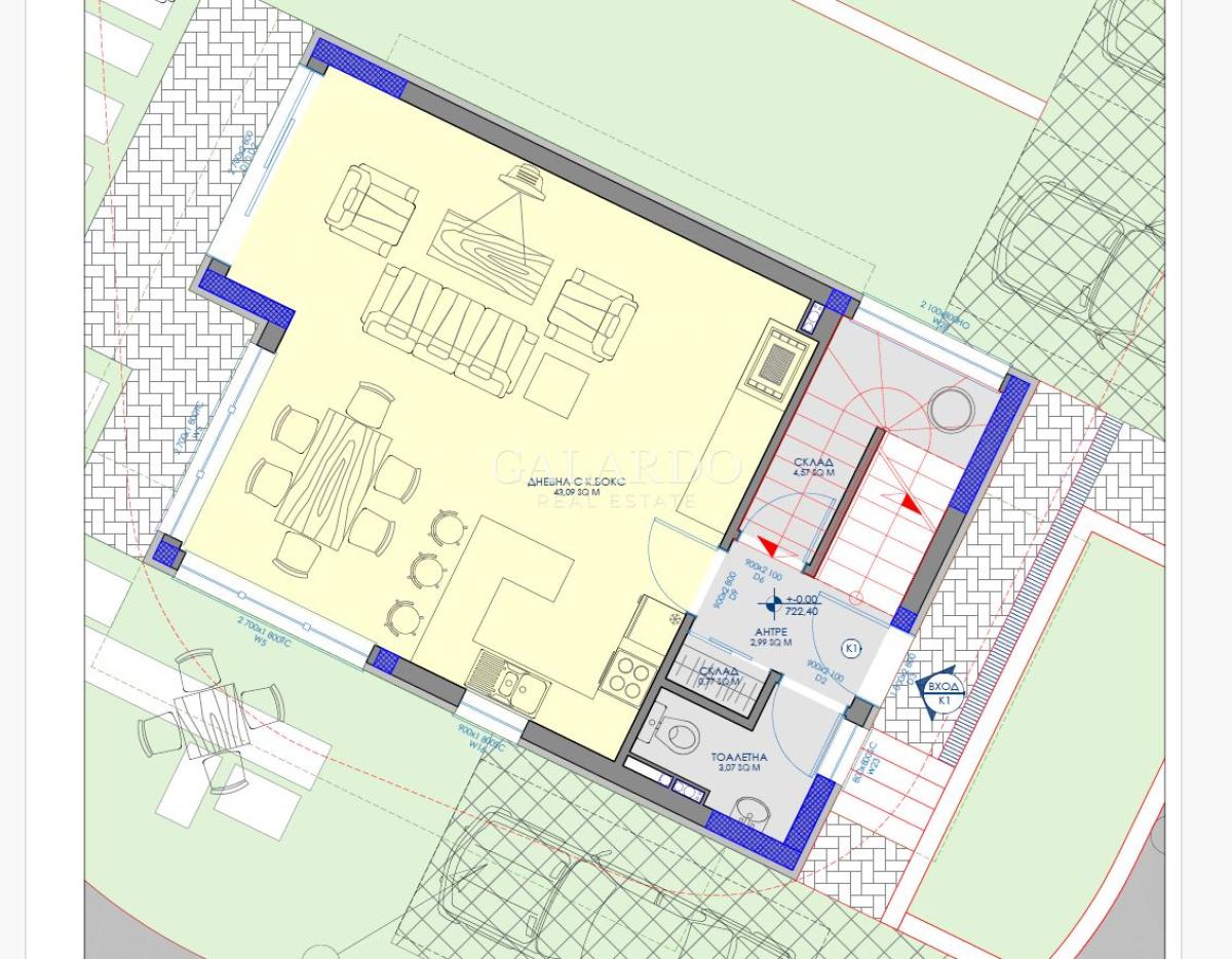
Разпределение

  • Първи етаж: входно антре, просторна дневна с кухня и трапезария с излаз на веранда и озеленен двор, баня с тоалетна, склад и техническо помещение.
  • Втори етаж: три спални с гардеробни помещения, една от които родителска с баня и тоалетна, втора баня с тоалетна и перално помещение.
  • Покривна тераса - просторна, подготвена за барбекю с прекрасни гледки към София и Витоша.

Преимущества

  • Бърз достъп до главни пътни артерии
  • Чист въздух и прекрасни гледки 
  • Модерна архитектура
Обадете се
Боряна Недева
Старши агент недвижими имоти

Може да харесате още

Продава
6
415 000 €
Редова къща в комплекс от къщи в местност "Детски град", Панчарево
ID: 21872
София
3 спални
189.20 m 2