Продава
6

Страхотен 3-стаен апартамент за продажба

Цена:
369 000 €
Продава
Реф. №: 21511
Обзавеждане : Необзаведен
Жилищна площ: 123.00 м 2
Спални: 2
Етаж: 6
Паркинг: Няма

Galardo Real Estate предлага на Вашето внимание 3-стаен апаратамент в новострояща се сграда в кв. Кръстова вада на инвеститор с богато портфолио.

  • Окачена фасада с естествен камък
  • Тухли Wienerberger Porotherm 25 N+F
  • Хидроизолационна мембрана Sika
  • Алуминиеви профили Reynaers MasterLine с троен стъклопакет и външно енергоефективно стъкло
  • Двуконтурен газов котел Viessmann и изградена система за подово отопление
  • Луксозни общи части с настилка от естествен камък
  • Шумоизолация между плочите - 5 мм мембрана DRACT
  • Мазилка Baumit Ratio 1000 L
  • Блиндирани входни врати Solid 55 с контрол на достъп и лицево разпознаване
  • Опция за завършване „до ключ"
  • Светла височина 2.90 м
  • Видеодомофонна система

Висококачествено строителство, комфортна и модерна среда на живот в бързоразвиващ се район

Към обявената цена се начислява допълнително ДДС

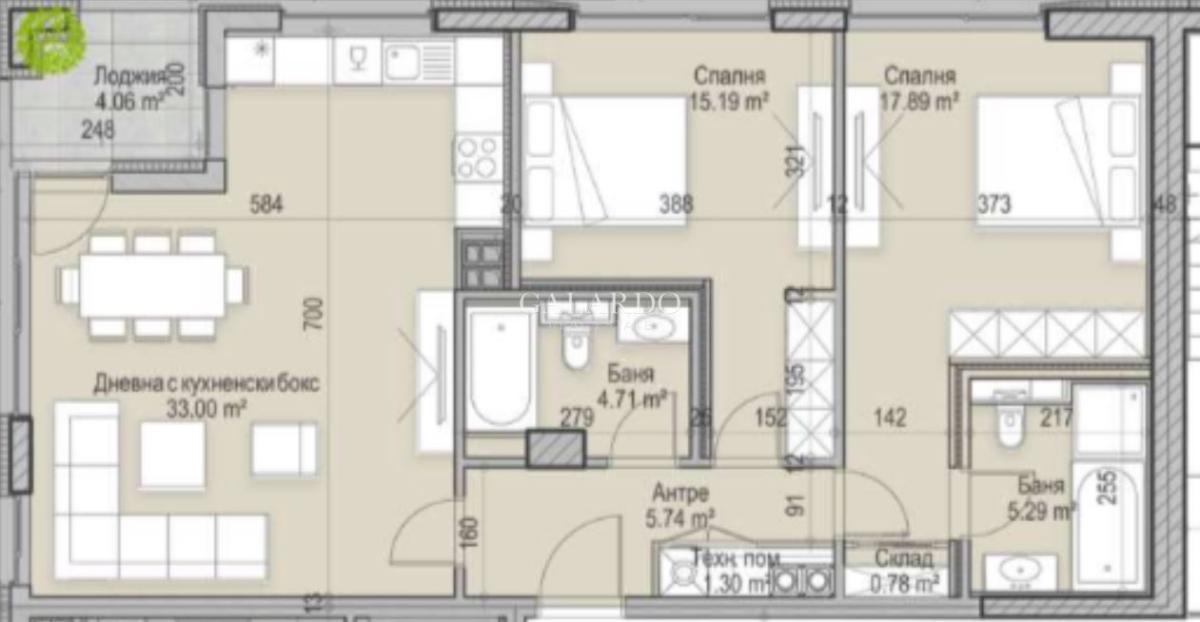
Разпределение

  • ​Антре (входно пространство) – 5.74 кв.м
  • Дневна с кухненски бокс – 33.00 кв.м
  • Спалня 1 – 15.19 кв.м
  • Спалня 2 – 17.89 кв.м
  • Спалня 3 – 5.29 кв.м
  • Баня 1 (основна) – 4.71 кв.м
  • Баня 2 (към малката спалня) – 3.00 кв.м
  • Техническо / перално помещение – 0.78 кв.м
  • Лоджия (балкон) – 4.06 кв.м

Преимущества

  • Комуникативна локация с бърз излаз към ключови булевади
  • Мол Прадайс
  • Нова метростанция
  • Предпочитан район за живеене и инвестиция
  • Висококачествено строителство
  • Комфортна и модерна среда на живот
Обадете се

Може да харесате още

Продава
4
193 200 €
Двустаен апартамент в малка бутикова сграда в кв. Кръстова вада
ID: 16708
Кръстова вада
1 спалня
69.00 m 2
Продава
8
344 000 €
Южен апартамент с 2 спални в луксозен комплекс на метри от бъдеща метростанция
ID: 21312
Кръстова вада
2 спални
116.67 m 2
Продава
2
244 800 €
Двустаен апартамент в кв. Кръстова вада.
ID: 21142
Кръстова вада
1 спалня
68.00 m 2
Продава
2
414 000 €
Тристаен апартамент в бутикова сграда кв. Кръстова вада.
ID: 21143
Кръстова вада
2 спални
115.00 m 2
565 000 €
Артистичен пентхаус в квартал Кръстова вада
ID: 18529
Кръстова вада
2 спални
165.00 m 2
295 000 €
Двустаен апартамент в комплекс Витоша-Тюлип до Paradise Mall, кв. Кръстова Вада
ID: 21557
Кръстова вада
1 спалня
75.37 m 2