Продава
6

Тристаен апартамент в бутикова сграда

Цена:
636 430 €
Продава
Реф. №: 21188
Локация: Изток
Обзавеждане : Необзаведен
Жилищна площ: 109.73 м 2
Спални: 2
Етаж: 2 От 7
Паркинг: Открито паркомясто
Отопление: Електричество

Galardo Real Estetе представя изключителен апартамент с 2 спални в бутикова сграда пред Акт 16 в един от най-престижните квартали на София – кв. Изток. Сградата е разположена на метри от природния оазис на Борисовата градина и метро-станция като предлага съчетание между спокойствие, комфорт и първокласна градска локация.

Бутиковата сграда е с високо качество и се състои от 7 етажа, което гарантира усещане за уединение и уют. Проектирана с внимание към всеки детайл, тя впечатлява с елегантна и съвременна визия, изпълнена с висок клас материали и прецизно изпълнение.

Апартаментът се намира на 2-ри етаж и има обща площ 149.84 кв.м.

Сградата разполага с надземни паркоместа и подземни гаражи, както и с красиво озеленен вътрешен двор – идеален за отдих и спокойствие в сърцето на града.

Цените са без ДДС

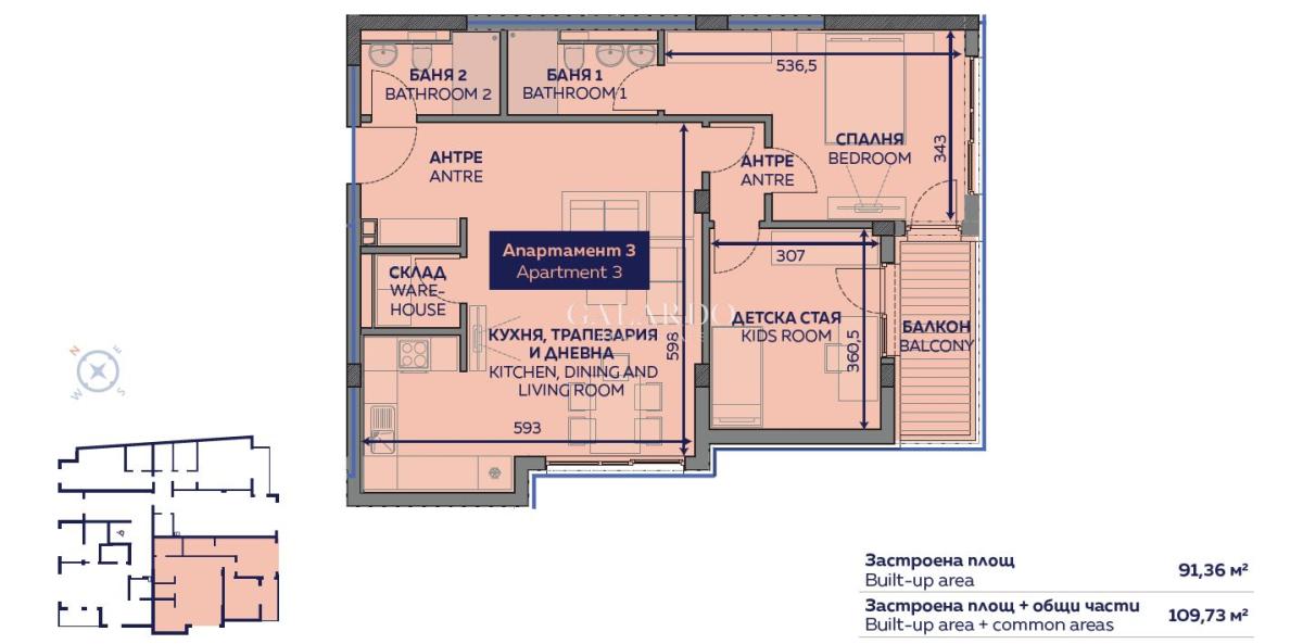
Разпределение

  • Антре
  • Дневна с трапезария и кухня
  • Спалня с баня
  • Втора спалня
  • Втора баня
  • Склад
  • Балкон

Преимущества

  • Бутикова сграда
  • Престижна локация
  • В близост до Парк и метростанция
Обадете се

Може да харесате още

430 000 €
Апартамент с три спални до метростанция Г.М. Димитров , кв. Изток
ID: 12264
Изток
3 спални
180.00 m 2
Продава
5
831 614 750 000 €
Тристаен апартамент в бутикова сграда
ID: 21207
Изток
2 спални
149.84 m 2
Цена по договаряне
Великолепен пентхаус в бутикова сграда в кв.Изток
ID: 21208
Изток
3 спални
314.22 m 2