Тристаен апартамент в нов комплекс до Зоопарка, кв. Витоша

Цена:
250 000 230 000 €
Продаден
Реф. №: 18685
Локация: Хладилника
Обзавеждане : Необзаведен
Жилищна площ: 124.11 м 2
Спални: 2
Бани: 2
Етаж: 2 От 6
Паркинг: Гараж
Отопление: Газ
Изложение: Изток, Север

Galardo Real Estate с удоволствие предлага тристаен апартемент в комплекс от модерни сгради в кв. "Хладилника". Апартаментът е със застроена площ 106.57м2, на етаж 1-ви над партер..

Изложение: изток/североизток. Върху сградите са инсталирани фотоволтаични системи, които ще покриват нуждите от електричество на общите части.

Високата енергоефективност ще бъде постигната и посредством вискокачествената изолация и дограма, с които ще бъдат оборудвани всички жилища в нея. 

Има инсталирано соларно параметрично улично и парково осветление, което няма да черпи енергия от мрежата

Общата консумация на енергия за всички нужди на сградите в комплекса е два пъти по-ниска от тази на сградите ново строителство в София. 

Сградата е класифицирана по енергийна ефективност с клас А.  

Асансьорите са високотехнологични и безшумни.

Предвидени са видеонаблюдение и денонощна охрана на входа на комплекса.

Апартаментите са подготвени за smart home решения.

Към апартамента може да бъде закупено паркомясто.или гараж.

Има свободен апартамент и на ет.6 и ет.1

Комплексът е въведен в експлоатация от 03.2023г.

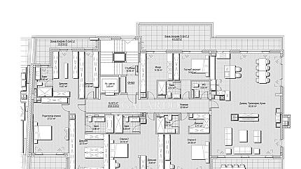
Разпределение

  • Антре
  • Хол с трапезария и кухня
  • Две спални, едната с баня
  • Баня с тоалетна
  • Тераса

Преимущества

  • Модерен, нов комплекс
  • Много добра локация
  • Сграда клас А
  • Връзка с метро
Обадете се
Поля Кирова
Старши агент недвижими имоти

Може да харесате още

Продава
373 000 €
Тристаен апартамент в Белия квартал
ID: 19961
Хладилника
2 спални
93.14 m 2
1 450 000 €
Луксозен пентхаус с уникални гледки в кв. Хладилника
ID: 21425
Хладилника
4 спални
531.00 m 2