Ексклузивно
Продава
15

Дизайнерски апартамент с 2 спални на минути от метростанция България

Цена:
330 000 €
Продава
Реф. №: 21637
Локация: Хиподрума
Обзавеждане : Обзаведен
Жилищна площ: 94.00 м 2
Спални: 2
Етаж: 6 От 7
Паркинг: Няма
Изложение: Изток, Запад, Север

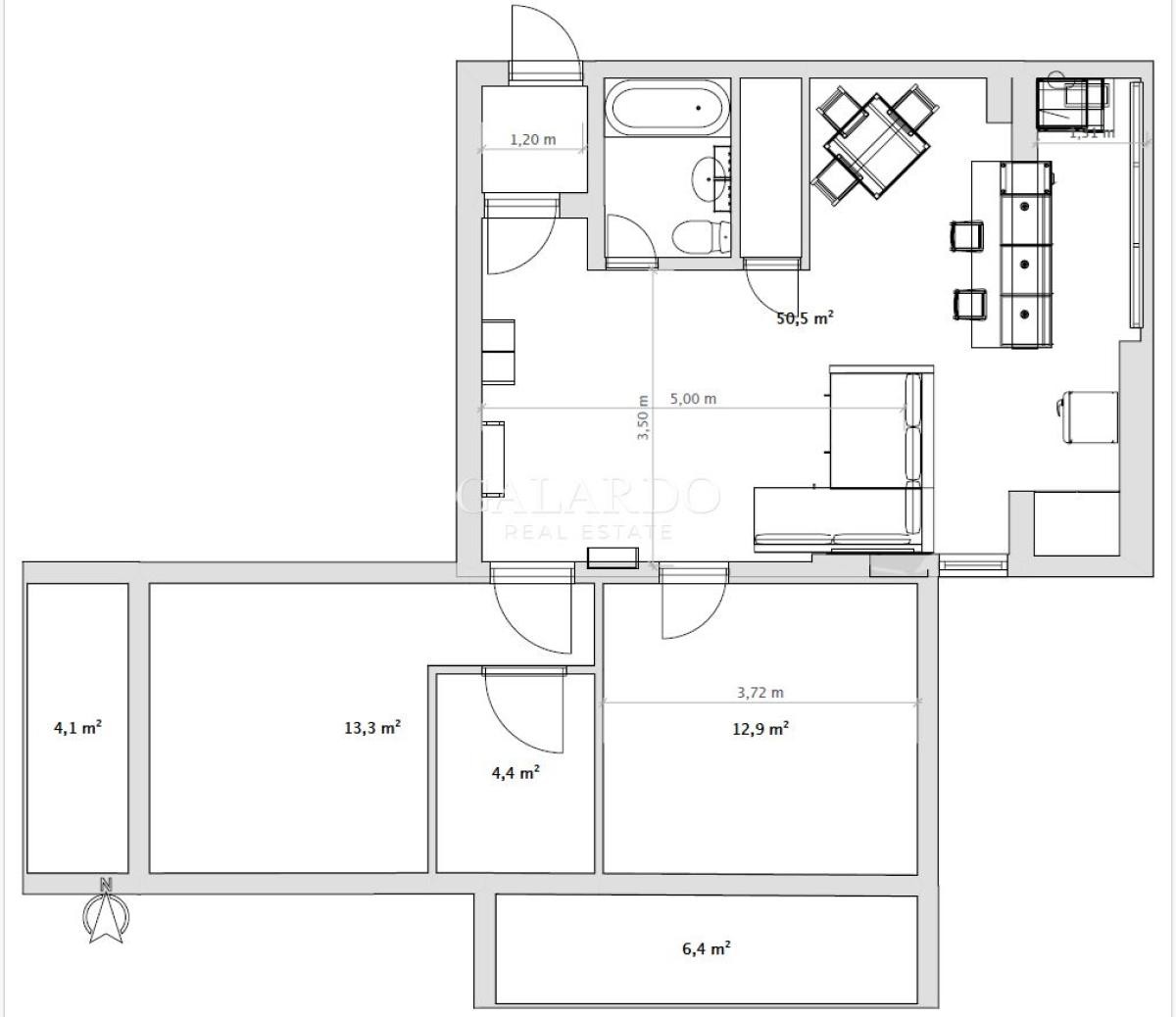
Gallardo Real Estate предлага за продажба слънчев, стилно обзаведен апартамент по дизайнерски проект в кв.Хиподрума, в близост до ул.Никола Палаузов. Имотът се състои от хол с трапезария и кухня, 2 спални с балкони, едната от тях с обособен дрешник, баня с тоалетна, мокро помещение. Имотът е обзаведен с висок клас материали и техника и съчетава модерен интериор и усещане за истински уют, който ви завладява още с влизането. Отоплението е с климатици, осигуряващи комфорт през всички сезони.Топлата вода е на ТЕЦ. Локацията е изключително комуникативна – само на 9 минути пешеходно разстояние от метростанция "България", което гарантира бърза и лесна връзка с центъра и ключови части на града.

По Нотар.акт 80 кв.м без общи части и без балкони. С мазе. Кооперацията е с асансьор.

Свободно паркиране на паркоместа пред сградата.

Разпределение

  • Хол с трапезария и кухня 39 кв.м
  • Спалня с дрешник 17.4 кв.м. + балкон
  • 2-ра спалня 13 кв.м. + балкон
  • Баня с тоалетна
  • Мокро помещение

Преимущества

  • Стилно обзавеждане
  • След ремонт
  • Светъл имот 
  • Комуникативна локация в близост до метро
Обадете се
Боряна Недева
Старши агент недвижими имоти